Het Ravenstein
A Passive Apartment Building with 64 Dwellings and a Timber Load-Bearing Structure, Reigersbos, Amsterdam, the Netherlands
For Woonzorg Nederland, we are working on a new residential building opposite a 1980s housing complex for seniors designed by architect Piet Tauber in Amsterdam Zuid-Oost.
A new enclosed courtyard garden
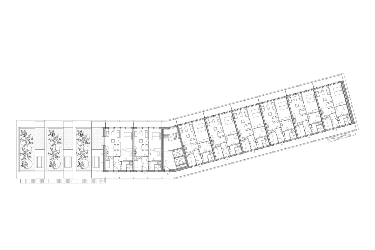
The new building will create a beautiful, enclosed courtyard garden on the site of the current parking lot. The seven-storey building cascades downwards to the south to connect to the lower part of the also tiered existing residential building. Rather than a dark shed, the communal bicycle storage is an inviting welcoming space that plays a leading part in the building’s access and services. The bicycle storage connects the entrance hall and the bicycle path to the Reigersbos shopping centre. The Reigersbos community space is located on the north side on the ground floor and is clearly visible from Reigersbosdreef and the metro platforms. Its terrace is part of the new courtyard garden. The new, enclosed green courtyard garden and a pergola connect the new building to the existing one and access the rest of the district and the shopping centre.
The apartments are 7 m wide and have a living room, a double bedroom and a balcony that runs the entire breadth of the apartment on the quiet side overlooking the new, green courtyard garden. The concrete columns, galleries and balconies, metal mesh fencing and steel staircases attached to the façade give the building a bold look that matches the 1980s architecture of the rest of the district. In contrast, the timber window frames, and wooden columns and slats make the recessed balcony and gallery façades warm and tactile at the human level.
Timber Load-Bearing Structure
The building has a main loadbearing structure of cross-laminated timber floors and walls and wood-frame construction façade elements. The ground floor and stairwell are made from concrete and act as a base and core for the stability of the hybrid structure.
Passive House Certification
The building is designed according to passive house principles to maximize ‘passive’ solar energy and internal heat. The Rc values of the longitudinal wall, end wall, roof and floor are 6.5 m² W/K, 8.0 m² W/K, 8.9 m² K/W and 6.5 m² K/W respectively, so that the energy consumption of the apartments is minimal. As a result, the building has a low carbon footprint and low CO2 emissions during use. In addition to the passive house design and timber construction, many proven techniques have been incorporated, such as air heating and cooling, infrared panels, cooker hoods and prefabricated bathrooms. The building has an Environmental Performance of 0.5.
Nature-inclusive
The stepped roof terraces become green gardens accessible to the residents, allowing them to meet and enjoy the sun and tranquillity. The building is nature-inclusive and has greened façades, green roof terraces, a water retention roof and nesting boxes.
Project A Passive Apartment Building with 64 Dwellings and a Timber Load-Bearing Structure, Reigersbos, Amsterdam, the Netherlands
Client Woonzorg Nederland
Design practice buro Kettinghuls
Architect Daniëlle Huls, Luïsa Jacobse
Landscape architect Bureau B+B
Period 2022-present
Status Preliminary design completed, environmental permit application end 2023
Team Beyza Altinok, Fabia Sainz Fernandez, Francesca Bonato, Daniëlle Huls, Luïsa Jacobse, Freddy Koelemeijer, Matthijs Noordover
Programme 64 apartments (GFS 63 m²), a communal space and bicycle storage (total GFS 5808 m²)
Engineering firm Pieters Bouwtechniek
Passive house consultant Azimut Bouwbureau
Installation technology DGMR
Installation engineering Hiensch

