Boxing School
Conversion of a Listed Gym into Two Dwellings, Maastricht, The Netherlands
The gym on the Groene Loper in Maastricht, now a heritage listed building, was built in 1954 and designed by Theo Boosten as an extension of the Johannes Berchmansschool, originally designed by architect Frits Peutz in 1949. The building features a distinctive structural design with five concrete trusses protruding from the side walls, which are composed of square concrete modules filled with steel frames, glass or concrete. The end walls are clad in coarse-grained Kunrader stone.
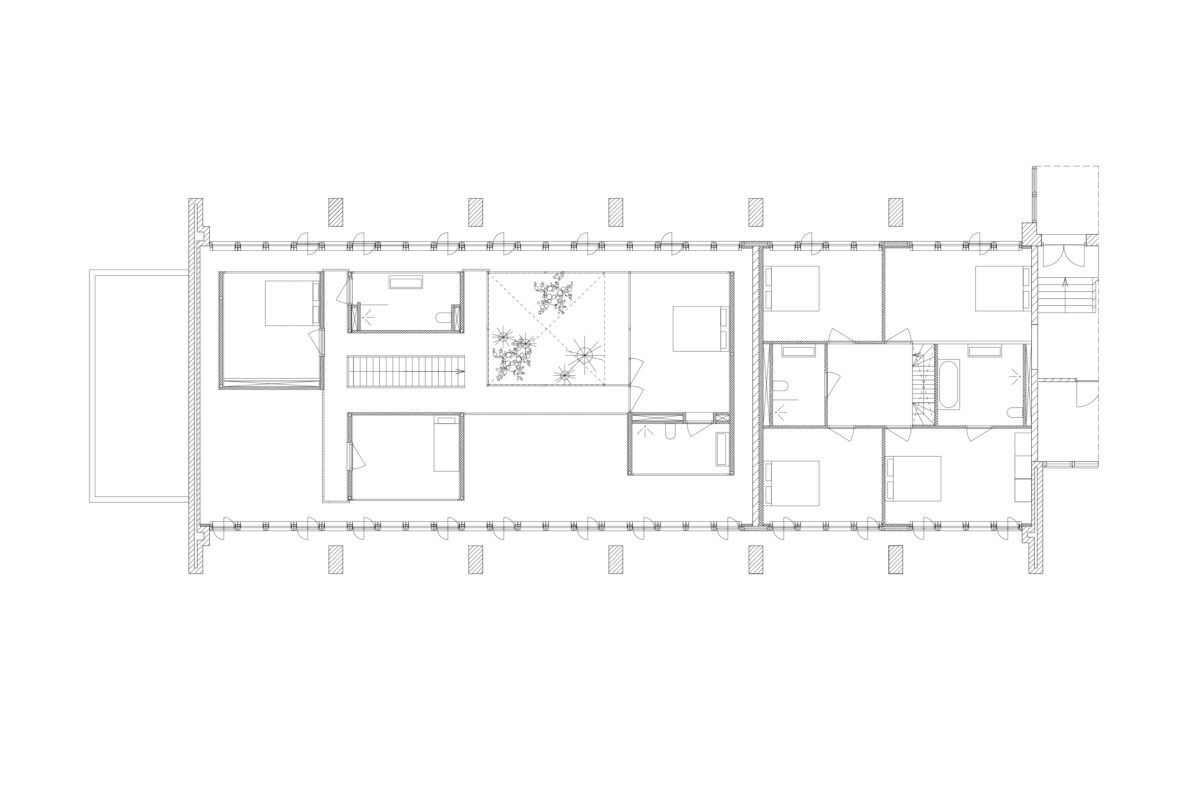
The structure will house two apartments: one in the two-storey changing area and another in the 6-m-high gym area. The layout of the apartment in the changing area follows the existing configuration of the changing rooms and lavatory facilities. In the gym area, the new rooms are designed as freestanding structures, resembling large pieces of furniture, and an internal courtyard provides a sheltered outdoor seating area.
The lightweight construction of the new apartment in the gym area features a visible red led-coloured steel frame with round columns supporting the outward-extending rooms. The wooden beams are left exposed, resting atop the steel structure. The walls utilize timber frame construction, clad in white-washed birch plywood, and the stacked design, complete with a patio on the first floor, gives the apartment an airy feel.
The concrete modular façade is enhanced with new steel window frames and insulated internally with solid wood frames, echoing the existing concrete frames on the exterior. French windows, a raised terrace and a double green hedge provide a gentle transition to the bustling Groene Loper.
Project Conversion of a listed gym into two dwellings, Maastricht, the Netherlands
Client Beckstone B.V.
Design practice buro Kettinghuls
Architect Daniëlle Huls
Period 2021-present
Status Final design completed
Team Daniëlle Huls, Luïsa Jacobse, Fabia Sainz Fernandez
Programme Dwelling 1 GFA 365 m² with 20 m² patio; dwelling 2 GFA 215 m²
Contractor Eijkerbouw
Constructor Castermans Betram Holten
Installation technology Technisch Buro Hermans
Building physics consultant Curvers Raadgevende Ingenieurs

